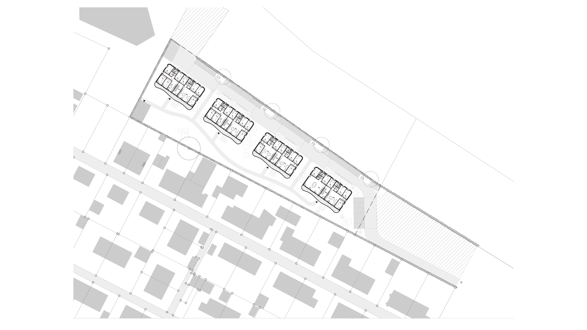
Bei den „Hoffnungshäusern“ handelt es sich um Wohngebäude in Holzbauweise, die auf einem modularen Baukastensystem basieren und so in Serie errichtet werden können. Hier im Riesenbergweg Konstanz stehen vier Häuser mit 2 Geschossen und insgesamt 20 Wohneinheiten.
Durch Wiederholung entsteht bezahlbarer Wohnraum von hoher architektonischer und baukonstruktiver Qualität bei niedrigen Baukosten. Das Baukastensystem ermöglicht die Kombination weniger modular angelegter Bauelemente in Form von vorgefertigten Wand-, Decken-und Dachelementen gleicher Abmessungen nach einem klaren Prinzip und damit unterschiedliche Gebäudegrößen mit Gebäudelängen zwischen 12 m und 24 m. Alle Bauten sind als Zwei-und Dreispänner mit innenliegendem Treppenhaus
organisiert. Ein Schlafraum hinter dem Treppenhaus fungiert als Schaltraum, wodurch geschossweise unterschiedliche Wohnungsgrößen entstehen. Zentrales Element jeder Wohnung ist eine Wohnküche, Verkehrsflächen wurden minimiert. Das Bausystem kommt mit wenigen tragenden Innenwänden aus, was maximale Flexibilität bei der Grundrissgestaltung und Anpassung an die Wünsche der verschiedenen Nutzer erlaubt. Architektonisch kombinieren die Hoffnungshäuser eine weiche, geschwungene Formensprache mit großzügigen Balkonen und vertikaler Holzleistenschalung mit unterschiedlichen Leistenabständen.
Die Gebäude entsprechen höchsten ökologischen Nachhaltigkeitsstandards und bestehen aus einer reinen Holzkonstruktion aus Massivholzbauteilen, Holzständerwänden sowie einer Holzleistenfassade. Die sehr gute Hülle wird durch Luftwärmepumpen und Photovoltaik ergänzt. Die Planung folgt den Prinzipien von cradle to cradle. Kreislaufdenken und Rückbaubarkeit sowie die Maximierung des Anteils nachwachsender Rohstoffe werden durch eine LCA_Bewertung aller Bauteile optimiert.
Die Hölzer, Holzprodukte und / oder Holzwerkstoffe stammen aus nachhaltiger Forstwirtschaft und tragen die Zertifizierung: PEFC (Programme for the Endorsement of Forest Certification Schemes) und FSC (Forest Stewardship Council).
Anzahl Geschosse: 2
Anzahl Wohnungen: 20




